Online
Основные причины и методы определения протечек торцового уплотнения центробежных шламовых насосов.
2022-09-27
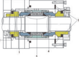
Полный набор механических уплотнений состоит из двух типов уплотнений: динамических уплотнений и статических уплотнений, оба из которых являются незаменимыми. В центробежных шламовых насосах обычно используются двухсторонние механические уплотнения картриджного типа. Имеется 5 двусторонних механических уплотнений. Общая точка уплотнения (см. рисунок ниже). Динамическое уплотнение обеспечивает плотный контакт двух торцевых поверхностей уплотнения для сохранения уплотнения во время вращения. Статическое уплотнение в основном опирается на резиновое уплотнительное кольцо механического уплотнения. взаимодействие между подвижным кольцом и втулкой вала при небольшом перемещении уплотнения.

1 — Уплотняющая поверхность пары трения динамического и статического колец 2 — Уплотнительное кольцо статического кольца 3 — Сальниковое уплотнение
4 — Уплотнение между втулкой вала и валом 5 — Уплотнительное кольцо между втулкой вала и подвижным кольцом
Утечка в уплотнении машины центробежного шламового насоса в основном связана с проблемами следующих трех уплотнений.
(1) Резиновое уплотнительное кольцо машинного уплотнения.
Температура среды, транспортируемой центробежным шламовым насосом, относительно высока, что приводит к передаче высокой температуры среды и поддержанию механического уплотнения в высокотемпературном состоянии в течение длительного времени, особенно после работы насоса. Торцевая поверхность механического уплотнения будет вращаться с высокой скоростью и генерировать трение и тепло, что приведет к старению или деформации резинового уплотнительного кольца. Чтобы снизить рабочую температуру механического уплотнения, шламовый насос должен подавать охлаждающую воду для механического уплотнения в механическое уплотнение для охлаждения механического уплотнения. Однако жесткость воды, охлаждающей механическое уплотнение, и содержащиеся в ней примеси постепенно приведут к повреждению резинового уплотнительного кольца или снижению его уплотняющего эффекта.
(2) Пружина сжатия подвижного кольца машинного уплотнения
Пружина сжатия отвечает за упругую компенсацию подвижного кольца. Из-за присутствия охлаждающей воды после определенного периода использования механического уплотнения образуется большое количество накипи. Это повлияет на работу пружины сжатия. привести к тому, что уплотнительные торцы динамического и статического колец механического уплотнения не будут находиться в тесном контакте друг с другом. Закрытие приведет к образованию зазора между уплотнительными торцами механического уплотнения и утечке.
(3) Повреждение торцевой поверхности машинного уплотнения.
Торцевая поверхность механического уплотнения обычно изготавливается из очень износостойкого карбида или карбида кремния, а структура широко используемого в настоящее время картриджного механического уплотнения также значительно снижает факторы воздействия на торцевую поверхность, поэтому при нормальных условиях использования это сложно чтобы торец торцового уплотнения не повредился из-за воздействия внешней силы на торец.
Чтобы диагностировать причину утечки механического уплотнения и определить место утечки, анализ и решение могут быть сделаны на основе статического испытания на герметичность после сборки механического уплотнения и утечки после вращения механического уплотнения. Если механическое уплотнение находится в неподвижном состоянии после установки и через него проходит охлаждающая вода определенного давления, возникнет утечка, и ее объем невелик. Проблема обычно возникает из-за уплотнительных колец на динамических и статических кольцах. механическое уплотнение, если через него проходит охлаждающая вода, большая утечка механического уплотнения указывает на наличие торцевого уплотнения между динамическим кольцом и статическим кольцом. Если возникает проблема, то она обычно вызвана неспособностью двух торцевых поверхностей полностью прилегать друг к другу. Эта неисправность требует разборки и повторной установки механического уплотнения. Если на начальном этапе механического уплотнения нет протечек, но протечка возникает. после работы в течение определенного периода времени обычно возникает из-за механического уплотнения. Это вызвано выходом из строя пружины сжатия уплотнения или повреждением динамического кольца механического уплотнения. Кроме того, можно также оценить причину отказа механического уплотнения и сформулировать соответствующие планы технического обслуживания на основе таких данных, как рабочее состояние шламового насоса, уровень вибрации оборудования, скорость вращения, качество охлаждающей воды и эксплуатационные характеристики. время механического уплотнения.
Связанные новости
Свяжитесь с нами
Вы можете связаться с нами четырьмя способами. Мы немедленно свяжемся с вами после получения вашего запроса!
Позвоните нам
Отправить электронное письмо
Форма сообщения
Добавить WeChat или WhatsApp